The Continental-z
Home type: Single Family Attached Garage
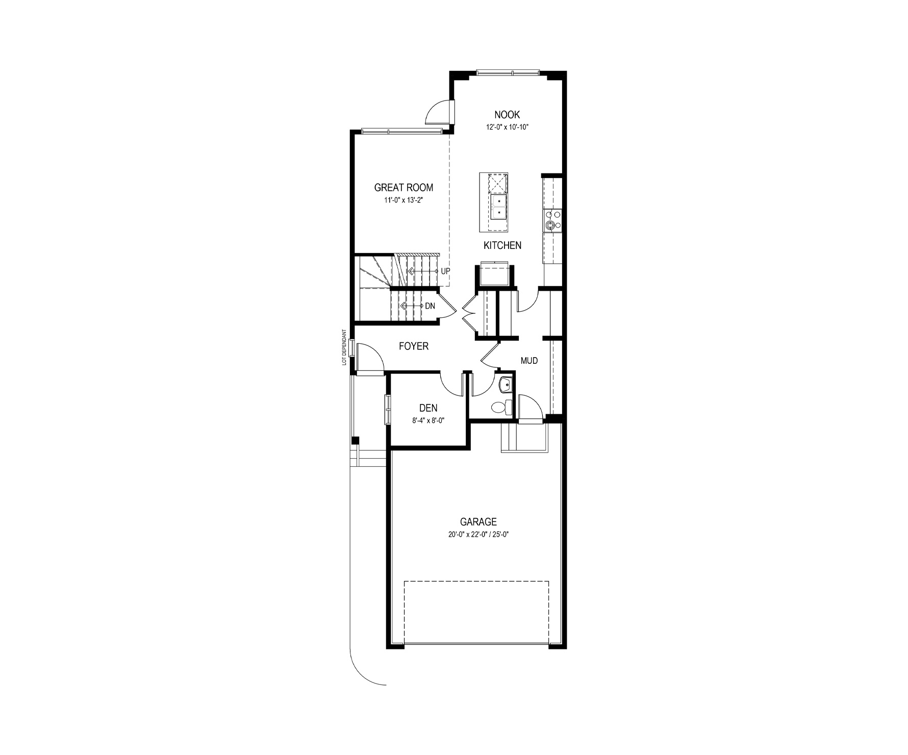
This Daytona home model includes high-quality home finishings and thoughtful features, making it safe, comfortable and budget friendly. You can choose from a variety of different floorplan options and styles to suit your unique lifestyle.
Explore The Continental-z
Actual product may differ slightly from the images, floor plans and renderings shown.
These homes are ready and waiting for you
The Continental-z R
Home Type: 9 Foot Foundation, Main Floor Den, Open to Above Great Room, Vaulted Ceiling in Primary Bedroom, Tiled Ensuite Shower
$685,619 Pre-GST. Includes home & lot.
This model is available to build in...
Subscribe to our newsletter
Treaty Seven Territory
Daytona Homes Calgary is located on the traditional territories of First Nations Peoples of Treaty 7. The Treaty 7 Lands in Southern Alberta are home to the Kainai Nation, Piikani Nation, Siksika Nation, Tsuu T’ina Nation, and the Bearspaw, Chiniki and Wesley (Stoney- Nakoda) Nations. Calgary is also home to Region 3 of the Métis Nation of Alberta.
© 2026 Daytona Homes. All Rights Reserved